Product Overview
Detex V40 Value Series Grade-1 Rim Exit Device, 99 Surface Strike, Hex Dogging, Exit Only
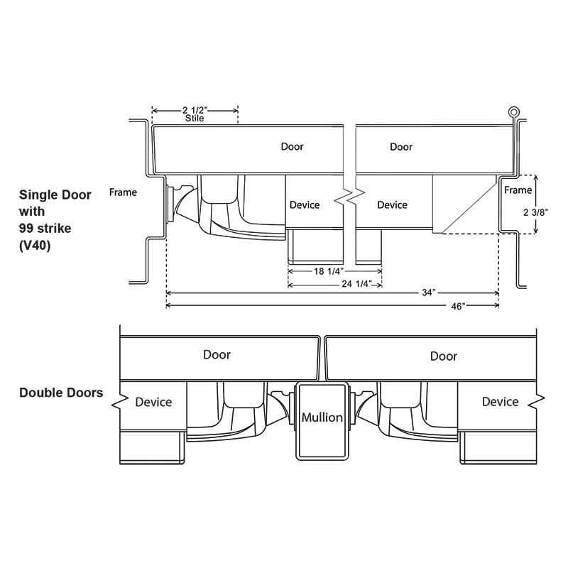
The V40 Series rim exit device is secure and durable panic and fire exit hardware at an economical price. It is designed for use on all types of single and double doors with 90 Series mullions. The patented mounting plate and strike locator system ensure the easiest and most accurate installation of panic hardware available.
- Exit Only (Detex Exit Device Trim sold separately)
- High-impact ABS and anodized surfaces
- Heavy-duty ribbed aluminum rail extrusion
- Fast and easy installation saves time and money
- Covers a 161 door prep
- Stainless steel, 3/4" deadlocking Pullman-type latch bolt
- Angled end cap deflects damage away from device
- Withstands over 1400 pounds of static pull force for greater security

| Brand | |
|---|---|
| Finishes |
628 Anodized Aluminum, 711 Black Anodized Aluminum |
| Length |
36", 48" |
| ANSI/BHMA Standard |
ANSI/BHMA certified A156.3 |
| Usage |
Medium Duty |
| Fire-Rating |
Non-Fire-Rated |
| Includes Trim |
No |
| Dogging Feature |
HD - Hex Dogging |
| Handing |
Non-Handed |
| Stile Type |
Wide (Standard) |
| Minimum Stile Width |
3-1/2" with 99 surface strike (Std.) for single door, 4" for pairs - 2" narrow stile doors with NSK Narrow Stile Door Kit (sold separately) |
| Door Thickness |
1-3/4" to 2-1/4" |
| ADA Compliance |
Meets ADA requirements - A117.1 Accessibility Code |
| Warranty |
10 Years |
| Buy American Act Compliance |
Meets Buy American Act - Made in USA |